Public Library | Public Meeting | Café | Exhibit Space | Office | 112,000 SF
Making a 58,000-square-foot addition with a large floor plate fit naturally into a classic, small-town streetscape was the challenge in designing the expansion of the Ocean County Library in Ocean County, New Jersey.
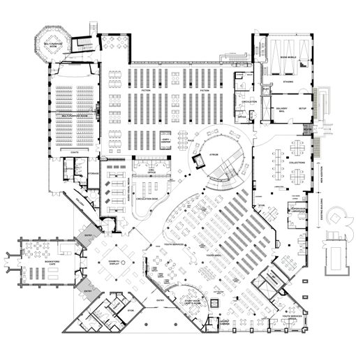
The new addition is massed in a series of seemingly individual facades that blend gracefully with its setting, creating a feeling of “small-town modern.” Exterior materials of brick and copper echo neighboring classically detailed municipal buildings. The space between the new addition, original library and municipal buildings is now an open, publicly accessible park.
A spacious entry exhibit hall leads to a central atrium – a glass-walled cylinder that brings natural light to the interior of the large addition. A “main street” arrangement of interior spaces gives visitors a sense of direction and a comfortable scale to individual spaces. A 256-seat meeting room opens directly to the outside of the library addition, allowing its use by community and civic groups even when the library itself is closed.
Imaginative, unusual interior finishes and fiber-optic lighting techniques give the inside of the library addition a playful feel and invite patrons to view their new library space as the opening pages to an exiting book.