Public Library | Drive-up Counter | Public Meeting | Café | Exhibit Space | 30,000 SF
The Southeast Anchor Branch of the Enoch Pratt Library system is Baltimore’s first new Public Library in over 35 years. The two-story, 30,000-square-foot public library has become the centerpiece for the Highlandtown neighborhood and its Eastern Avenue commercial district’s renewal. It is a remarkable achievement of grassroots action in a city with difficult public finances.
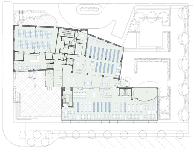
The library has access to convenient public parking and is surrounded by two landscaped entry courtyards, one in front on Eastern Avenue and the other connecting Conkling to the parking lot. This creates an attractive park like setting for patrons and shoppers. The design features a relatively solid brick wing as a backdrop for a glass-enclosed wing where the library’s major reading areas are dramatically displayed from both streets. The wings are linked by a light-filled two-story atrium with bridge connections.
The entry level includes a lobby passage and Periodical and New Book Display Area at the base of the atrium that separates the active Children’s Room from Adult Fiction. The north end of the Children’s Room, the north entry and a cafe face out to the front courtyard in an inviting gesture to passers-by. Behind the cafe is a 200-seat meeting room that can be divided for two concurrent programs. The second floor public areas include Reference, Adult Non-Fiction and AV Collections, Young Adults, a Computer Technology Lab, three Group Studies and a Quiet Study Room.
It is a modern building design that welcomes in the many passersby in this busy neighborhood crossroads and delivers everything a public library should despite a very modest budget. It is also a clever urban design solution to a challenging requirement of two entries - one from Eastern Avenue and the other from the public parking lot located at the rear of the site that are connected via an airy light filled central atrium.