The 80,000-square-foot library takes advantage of a prestigious central gateway location to anchor future development, advancing the College’s goal of establishing a “town & gown” zone as it expands west of 3rd Street. The design creates an active place that enlivens this transitional area and enhances St. Norbert’s competitive standing, an important measure of academic quality for prospective students and faculty.
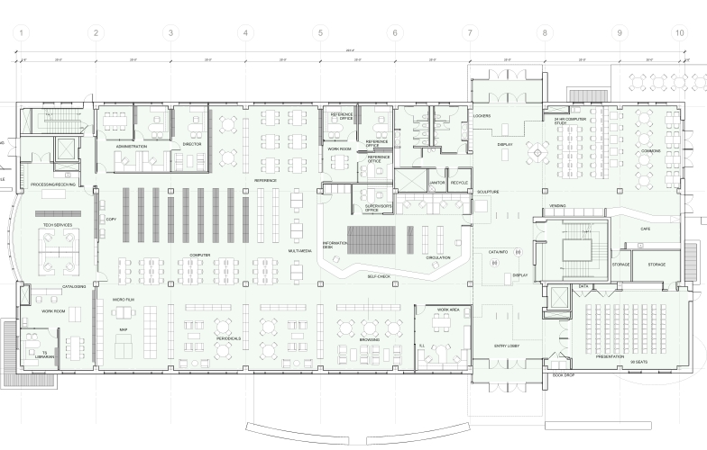
With the 50% expansion in the College’s collections, the library also provides greatly needed user space making the space much more than a traditional library. The 3-story building features an active communal welcome center, collaborative information commons, many reading rooms, special collection rooms, and quiet contemplative retreats. Users have ubiquitous access to computers including wireless technology, related classrooms, student labs, a Faculty Teaching/Learning Center, Writing Center, Curriculum Center, and Seminar and Conference Rooms. The entry atrium designed with the metaphor of internet cyberspace provides all day access to the 24-hour study / café area. The cozy café and terrace provides an alternative