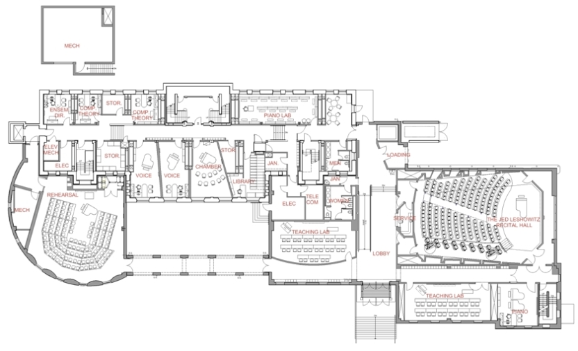
Recital Hall | Rehearsal Room | Practice Room | Faculty Office | Teaching studio | 52,000 SF
The John J. Cali School of Music is an adaptive re-use project that transforms a former dormitory and classroom building into a state-of-the-art teaching, practice and performance facility, and creates a new “gateway” building for the campus.
Built in 1928 in the Spanish Mission Style, the building originally known as Chapin Hall served as a dormitory until a later renovation transformed it into a classroom and departmental office facility. In 2005, the University commissioned Hillier Architecture to renovate and expand the original structure to establish a new home for the John J. Cali School of Music.
The program calls for a 250-seat recital hall; teaching studios; music practice and rehearsal rooms; and faculty offices. Another goal of the project is to achieve a rating under the U.S. Green Building Council’s Leadership in Energy & Environmental Design (LEED) Sustainable Design Rating System.
To accommodate the program, the design proposes a new 23,000-square-foot, 2-story addition to the original 5-story, 29,000-square-foot structure, for a total of 52,000 square feet. The need for superior acoustics required the design team to overcome several challenges posed by the building’s existing tight floor-to-floor heights and older mechanical systems. Practice rooms and teaching studios are designed as a “box within a box” for acoustic isolation from other rooms. Innovative HVAC design accommodates the low floor-to-floor height (9’8”) of the existing building for superior soundproofing and optimal humidity and temperature control.
Exterior renovations to the building reorient the main entrance to face College Avenue, a major thoroughfare on campus, rather than the quadrangle, where the original entry was located. The new façade offers a picturesque interpretation of the original Spanish Mission Style and provides a formal gateway to the campus.